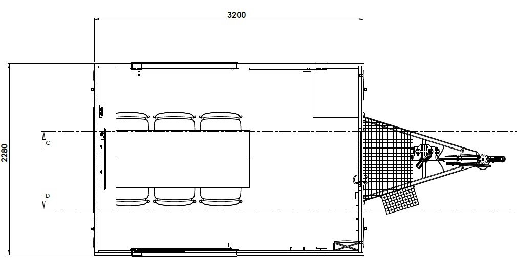
Mannskapsvogn for 6 personer
PV-6-320-SV Mannskapsvogn for 6 personer med sittegruppe, bord og vinduer. Fungerer som oppholdsrom og pauseområde. Utstyrt med innvendig belysning og ventilasjon. Egnet for byggeplasser og arrangementer.
Spesifikasjoner
Farge: sort / hvit / grå
Mål
Bredde: 2,280 cm
Lengde: 3,200 cm
