Usikker på hva du trenger? Vi har utviklet HIBAS-hjelpen som gjør leieprosessen enklere.
Farge: grå
Fleksibel 10-fots container egnet som vaktbod, billettbod eller informasjonspunkt. Mobil løsning med dør og vinduer,… les mer
Vakt- og billettbod basert på 10-fots container. Egnet for billettsal, vakthold og informasjonspunkter på arrangementer,… les mer
Fleksibel 20-fots container egnet som vaktbod, billettbod eller informasjonspunkt. Mobil løsning med dør og vinduer,… les mer
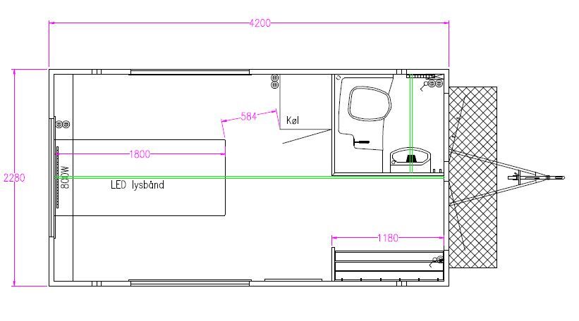
Mobil mannskapsvogn for 4 personer med integrert tanktoalett. Transportabel med hjul og innebygd trapp for… les mer
Mannskapsvogn for 6 personer med integrert toalett, håndvask og oppholdsområde. Kombinerer sanitær- og pauseromløsning. Egnet… les mer
Mannskapsvogn for 6 personer med sittegruppe, bord og vinduer. Fungerer som oppholdsrom og pauseområde. Utstyrt… les mer
Mobil mannskapsvogn for 8 personer med lukket konstruksjon. Fungerer som oppholdsrom og pauseområde. Montert på… les mer
Kompakt vaktbod med én luke. Mobil løsning egnet for billettsal, vaktpost og informasjon ved innganger,… les mer
Vakt- og billettbod basert på 10-fots container. Utstyrt med dør, vinduer og belysning. Egnet for… les mer
Vakt- og billettbod basert på 20-fots container. Utstyrt med dør, vinduer og belysning. Større løsning… les mer
Mobil vakt- og billettbod på vogn med to betjeningsluker. Egnet for billettsalg, vakthold og kundeservice… les mer
Mobil vakt- og billettbod på hjul med tre billettluker. Effektiv kundebehandling på arrangementer, parkeringsplasser og… les mer
Mobil vakt- og billettbod på vogn med 4 billettluker. Stor kapasitet for billettuttak og kontroll.… les mer