Toalettvogn med 4 tanktoaletter
TV-TC4-320-SV Toalettvogn med fire separate tanktoaletter. Hver kabin har toalett med spyling, vaskeservant og speil. Påmonterte trapper for enkel tilgang. Egnet for byggeplasser og arrangementer.
Spesifikasjoner
Vekt: 1,500 kg
Egenvekt: 1,500 cm
Tankstørrelse: 4x150 L
Ferskvann: 65 L
Farge: Hvit
Tillatt totalvekt kg: 1,500 kg
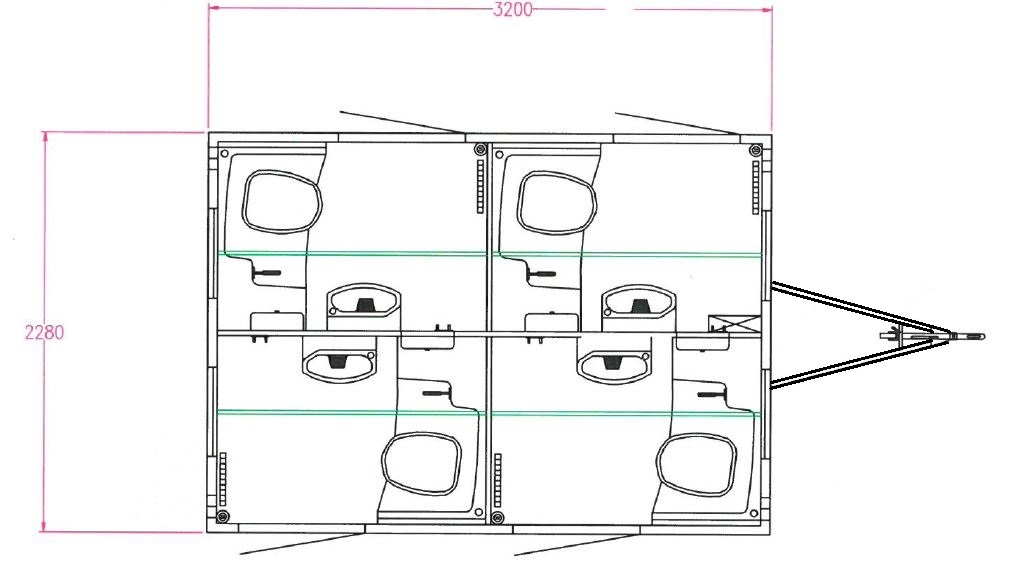
Mål
Bredde: 2,280 cm
Høyde: 2,810 cm
Lengde: 3,200 cm
