Toalettvogn med 6 tanktoaletter
TV-TC6-660-SV Toalettvogn med 6 tanktoaletter fordelt på dame- og herreavdeling. Utstyrt med vaskeservant og lys. Utrekkstrapper med 3 trinn. Egnet for arrangementer og byggeplasser.
Spesifikasjoner
Vekt: 1,552 kg
Egenvekt: 1,552 cm
Tankstørrelse: 6x150 L
Ferskvann: 65 L
Farge: Hvit
Tillatt totalvekt kg: 3,000 kg
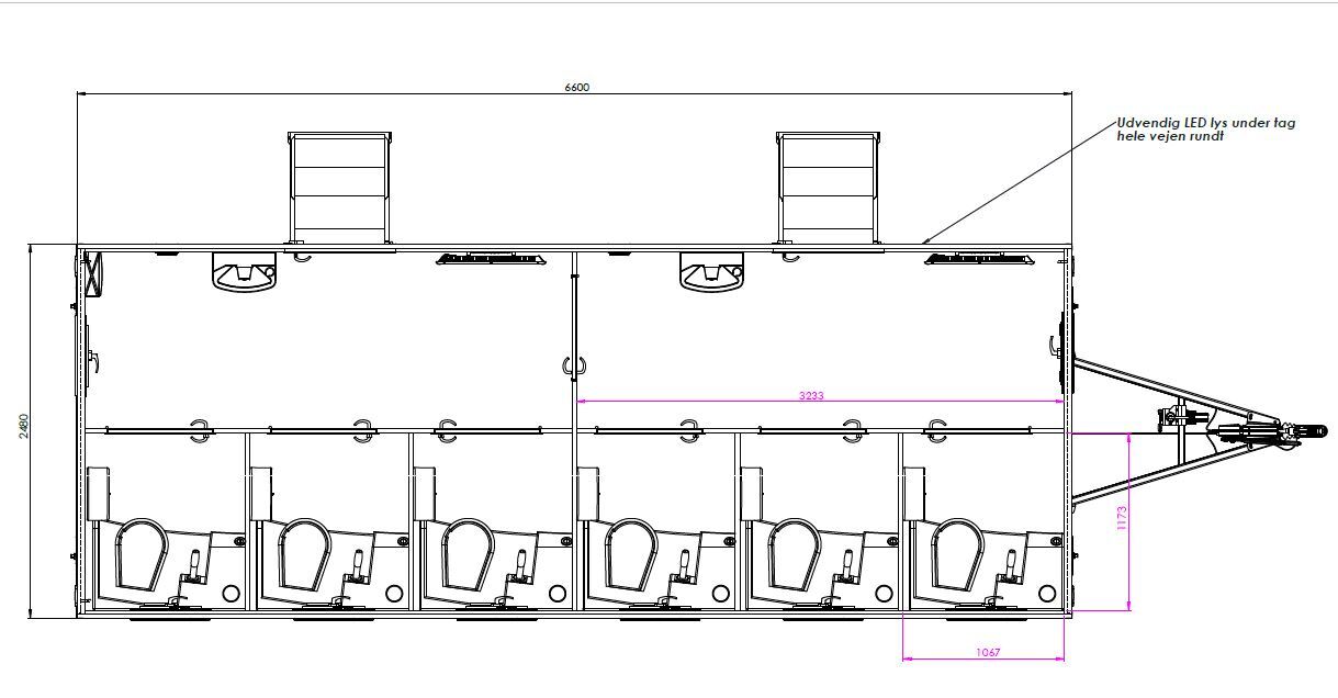
Mål
Bredde: 2,480 cm
Høyde: 2,950 cm
Lengde: 6,600 cm
Innvendige mål mm: 3,233 mm
