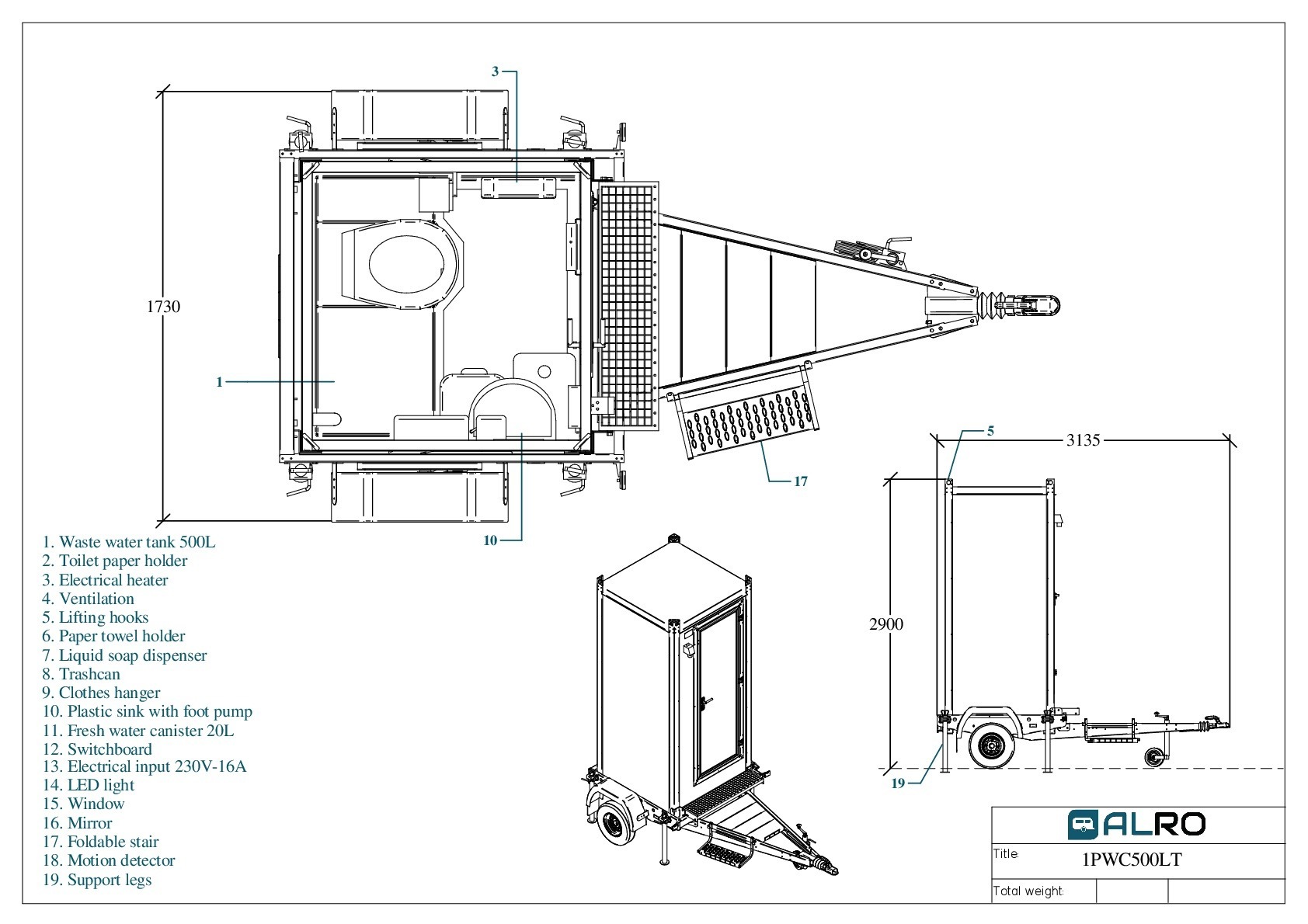
Isolert toalettkabin på hjul
TCV-5-ALR Isolert toalettkabin på hjul med toalett, vaskeservant og varmesystem. Utstyrt med hengerfeste for enkel transport. Egnet for byggeplasser og arrangementer uten fast sanitærinfrastruktur.
Spesifikasjoner
Vekt: 530 kg
Tankstørrelse: 500 L
Ferskvann: 50 L
Farge: hvit / blå
Tillatt totalvekt kg: 750 kg
Strøm inn: CEE 1-fas 16a 230v
Mål
Bredde: 1,730 cm
Høyde: 2,900 cm
Dybde: 3,135 cm
Lengde + drag: 3,135 cm
